APPARTEMENT DUPLEX T4 (RT2012) LOUE , ascenseur + 2 parkings couverts en sous-sol – CENTRE VILLE – INVESTISSEUR
Votre agence IMMO25 ORNANS vous propose à la vente, un appartement T4 DUPLEX d’environ 93 m² (Loi Carrez / environ 110m² au sol) avec une jolie vue dégagée dans une résidence de 2012 (RT2012) de standing bien entretenue (accès sécurisé digicode) dans la maison des services et rentable.
ACTUELLEMENT LOUE – SPECIAL INVESTISSEUR
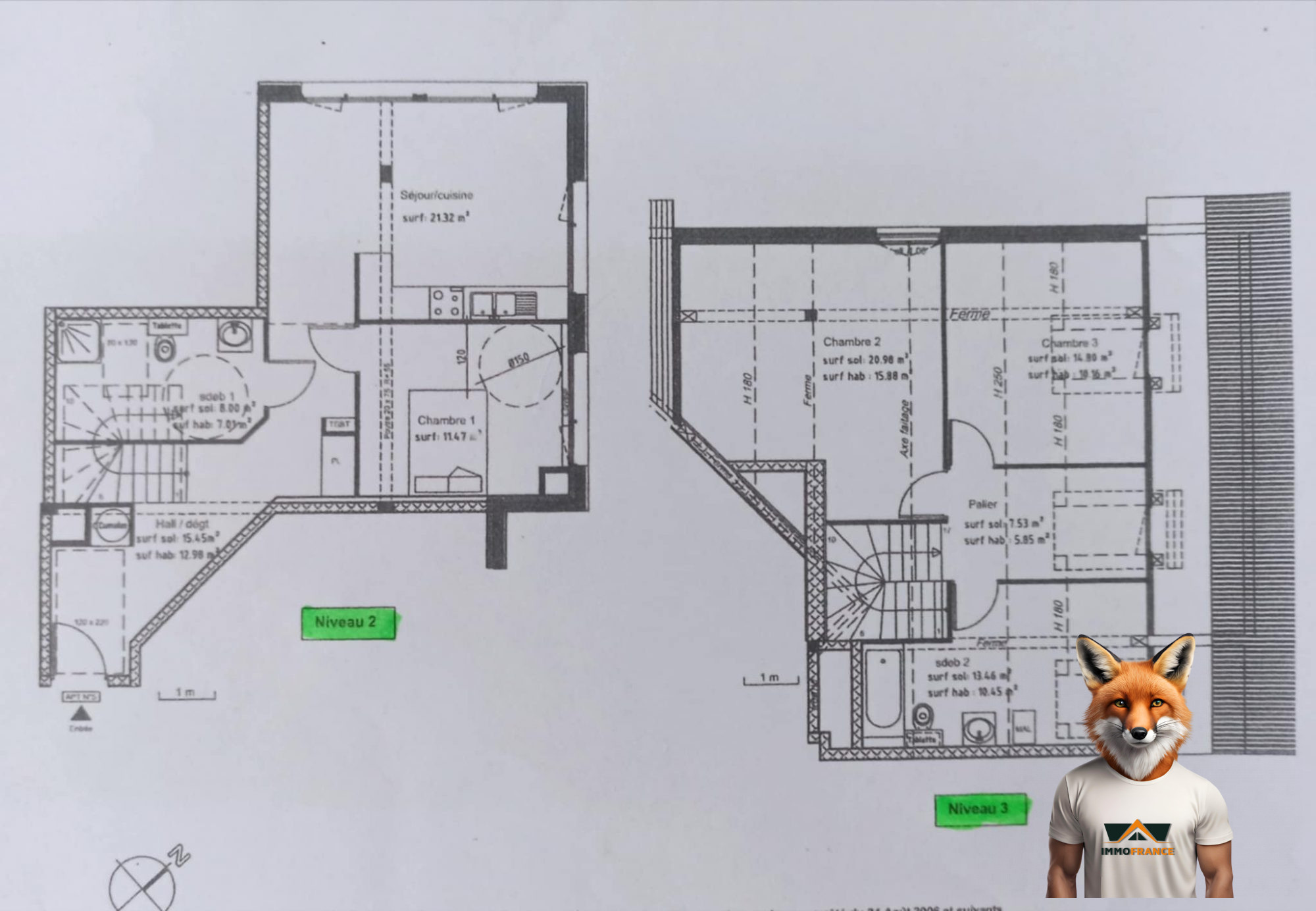
Situé au deuxième étage avec un accès facilité par un ascenseur, cet appartement se compose :
AU PREMIER NIVEAU : environ 49 m²
– d’une cuisine aménagée et équipée / salon
– d’une chambre
– d’une grande salle d’eau avec WC,
AU NIVEAU SUPERIEUR (et dernier niveau) : environ 44 m²
– d’une kitchenette équipée
– de deux chambres
– d’une deuxième grande salle d’eau avec WC
Viennent compléter ce bien en sous-sol avec accès sécurisé :
– 2 places de parking couvertes en sous-sol avec porte motorisée
– une cave privative avec grande hauteur sous plafond
Chaudière collective récente à granulés pour des coûts énergétiques faibles et maitrisés.
Actuellement loué meublé à deux colocataires très sérieux et fiables, assurant une belle rentabilité immédiate.
Loyer mensuel charges comprises : 1 149€
Tous les loyers sont à jour de paiements.
Situé au cœur d’Ornans, dans une copropriété calme et moderne, avec des parties communes en très bon état, cet appartement spacieux offre une excellente opportunité d’investissement locatif clé en main idéal pour un LMNP (Loueur Meublé Non Professionnel) ou pour un premier achat/investissement sécurisé avec une rentabilité immédiate.
Logement sans travaux avec un DPE très performant.
Aucune vacance locative depuis la mise en location en 2014 !
Tout à pied : musée Gustave COURBET, laboratoire, médecins, banques, commerces, crèche, écoles, transports, services.
Appartement relié à la fibre.
Montant moyen mensuel de charges déclaré par le vendeur : 100€ par mois (soit 1200 € annuel) comprenant frais de syndic professionnel, assurance du bâtiment, cotisation au fonds travaux de copropriété.
Aucune procédure en cours.
Taxe foncière : 715€
Les informations sur les risques auxquels ce bien est exposé sont disponibles sur le site Géorisques : www.georisques.gouv.fr
A visiter sans tarder et disponible immédiatement !
Entrez rapidement en contact avec l’agence immobilière IMMO25 ORNANS 70 rue Pierre VERNIER pour une visite auprès de Gérald CLAUDE
Honoraires à la charge du vendeur. Dans une copropriété de 11 lots. Aucune procédure n’est en cours. Classe énergie C, Classe climat A Montant moyen estimé des dépenses annuelles d’énergie pour un usage standard, établi à partir des prix de l’énergie de l’année 2021 : entre 940.00 et 1272.00 €. Les informations sur les risques auxquels ce bien est exposé sont disponibles sur le site Géorisques : georisques.gouv.fr.
Votre conseiller IMMO FRANCE : Gérald CLAUDE
Agent commercial (Entreprise individuelle)
RSAC 911 235 844
Honoraires charges : Vendeur























